濟南華聯嘉華購物廣場增層加固改造設計-加固改造設計
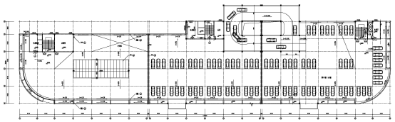
濟南華聯嘉華購物廣場位于經二路西段,2000年前后,建成時地下1層,地上5層,建筑高度22.770米,鋼筋混凝土框架結構,主次梁等高的密肋膜殼樓蓋,筏板基礎。上部結構由2道變形縫分成3個單體(原屋頂平面見圖1,上南下北),中西側2單體于2008年前后行了加層改造,即在屋面以上增加兩層鋼框架結構,作為車庫使用,加層改造后的總建筑面積約為5.2萬平方米。
圖1 原屋頂平面圖
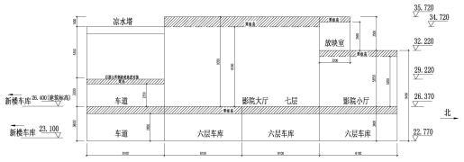
根據經營要求,建筑物東側單體需進行加層改造,加層后,原五層頂屋面變為六層,作為車庫或經營使用,原五層新世紀影城搬遷至新建七層。加層設計時,結構標高布置需在滿足影廳凈高要求的同時兼顧新加樓層與周邊建筑物車道的交通銜接、屋頂涼水塔、影院放映廳、已有樓梯、電梯等,平面、剖面布置較為復雜,剖面見圖2。
圖2 影院區域剖面示意圖
加層部分采用鋼框架結構:樓板采用壓型鋼板為底膜的鋼筋混凝土樓承板,屋面板采用鋼桁架輕型復合板;框架柱采用雙向穩定性能較為合理的圓形鋼管截面;通過外包上下連續貫通的鋼筋混凝土柱墩實現鋼柱底部與原鋼筋混凝土結構的剛接連接。
建筑物所在區域抗震設防烈度為6度,設計地震分組為第三組,設計基本加速度為0.05g。現建筑物抗震設防分類為重點設防類,加固改造計算時地震作用取7度(0.10g),原有鋼筋混凝土框架的抗震等級提高至二級。整體計算可知,原有結構主要存在下部樓層柱軸壓比超限、上部樓層柱體積配箍率不足、框架梁端部截面抗彎承載力不足等問題,相應采取了柱加大截面、柱端外包碳纖維片材、梁端加腋的加固方式。
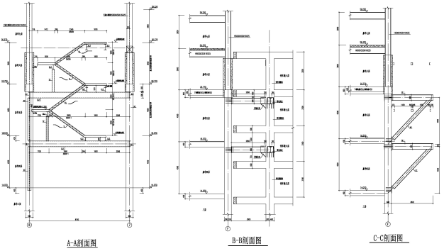
改造施工過程中,影城向商場提出了增設巨幕影廳的要求,巨幕影廳設在中間單體的七層,該方案的實施需將八層局部鋼梁樓面拆除,并將周邊鋼柱接長后新做屋面。本部分改造的難點在于原邊跨為六層設斜撐的兩層外挑結構,斜撐支撐上部兩層的荷載,八層鋼梁拆除后切斷了外挑部分與內部的拉結,斜撐內力增大、懸挑結構有整體失穩的趨勢。此外,影院提出了加固后不能影響影廳內使用、看臺下做疏散通道的要求。分析討論后,采取在看臺下增設鋼管斜桿的加固方式,外挑部分亦增設斜桿、并加強下部斜撐(圖3),使結構局部形成了幾何不變體系,多道安全儲備的同時也滿足了影院的使用要求,一舉兩得。
圖3 巨幕影廳鋼斜桿加固懸挑結構剖面示意圖
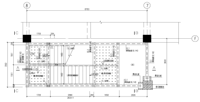
影城搬遷至七層后,相應的消防疏散亦不滿足要求,需增設消防疏散樓梯或將原有樓梯接長至七層。然而商場已有的復雜平面布局給樓梯的改造提出了新的難題:建筑內部新增樓梯會減少經營面積、影響正常經營;室外增設樓梯至地面將會阻礙地面的消防車道。分析討論后決定采取在建筑物外新增外挑鋼樓梯的方式,對原有樓梯在室外進行接長。外挑樓梯主受力梁下設鋼斜撐,受力梁與鋼斜撐直接與原結構混凝土柱連接,保證結構安全的同時大幅度減少了加固量。外挑樓梯鋼梁遇相鄰建筑框柱時,采用了滑動支座連接方式,兼顧豎向承載的同時避免了地震作用下的相互影響。懸挑樓梯的平面及剖面分別見圖4、圖5。
圖4 外挑鋼樓梯平面圖
圖5 外挑鋼樓梯剖面圖
其他加固改造內容還包括原加層鋼柱底部連接的加強、原屋面中庭天井的補空、兩處扶梯增層、貨梯增層、樓梯增層、商戶內荷載增加后梁板加固等。
-
山東建固
建大加固院
-
(0531)86367232



地址:濟南市歷山路96號山東建筑大學(和平校區)
電話:(0531)86367232
傳真:(0531)86993042